Aasamäe tn 19-2
349 000 €
- 1854 m² hooviala
- Energiasäästlik kivimaja: A-energiaklass, maaküte ja soojustagastusega ventilatsioon, jahutussüsteem
- 2 panipaika, 2 parkimiskohta maja ees, terrass privaatses hoovis, elektriauto laadimisvalmidus
- Paarismaja valmib 2026. aasta lõpus
Ääsmäe Kodud ühendab endas kaasaegse arhitektuuri, energiasäästlikud lahendused ja looduslähedase elukeskkonna. Ridaelamu ja paarismaja on loodud ühe arhitekti terviklahendusena, luues ühtse ning kvaliteetse elamuarenduse.
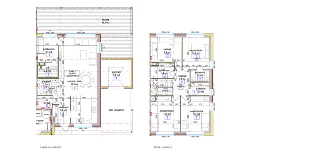
Avara 5-toalise majosa suurus on 170,2 m², millest elamispinda on 120,1m². Majaosale kuulub avar, 557 m² hooviala.
Esimesel korrusel asuvad avatud köögiga elutuba, esik, WC, panipaik, saun koos eesruumiga ning duširuum. Elutoast ja sauna eesruumist pääseb terrassile, mis on privaatsuse tagamiseks piiratud vaheseinaga.
Teisel korrusel asuvad kolm magamistuba, millest ühel on walk-in garderoob, lisaks trepihall, avar vannituba, kabinet, mida saab soovi korral kasutada ka lisatoana, ning eraldi koduhoiuruum
Boonusena on trepihalli paigaldatud jahutussüsteem, mis tagab mõnusa sisekliima ka suvekuudel.
Tunned huvi Ääsmäe Kodude vastu?
Ääsmäe Kodud on energiasäästlik ja kaasaegse arhitektuuriga arendus, kuhu kuuluvad 6-korteriga ridaelamu ning paarismaja. Võta meiega julgelt ühendust – aitame Sul leida uue kodu!


